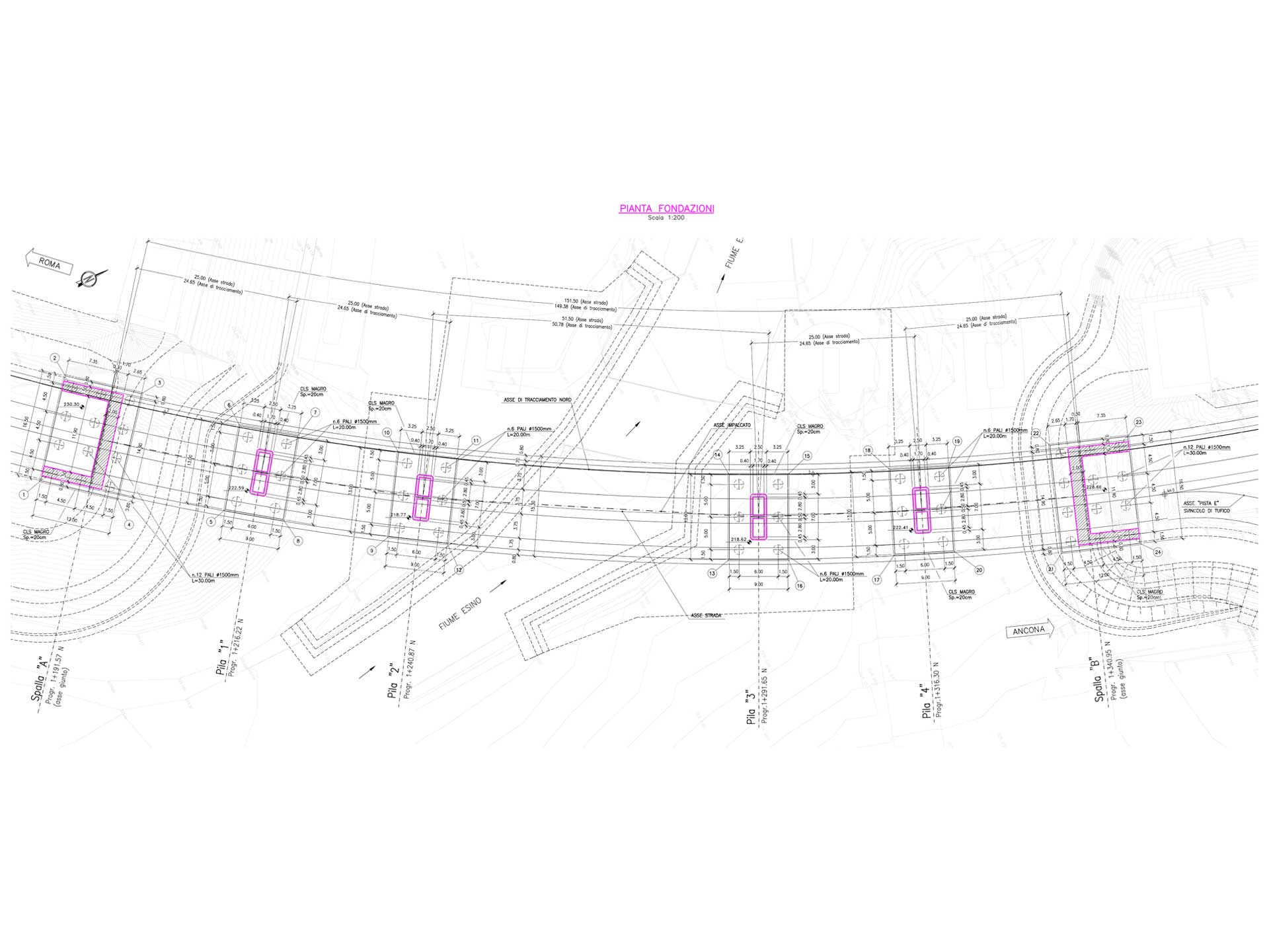
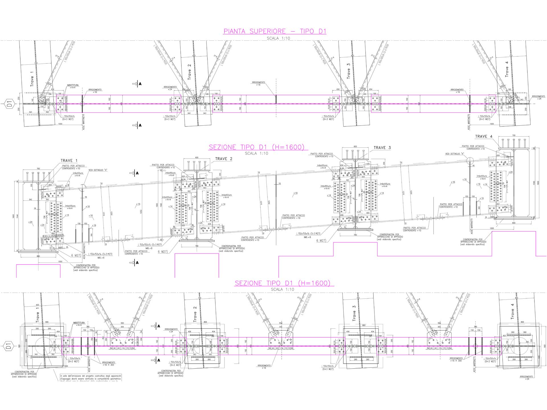
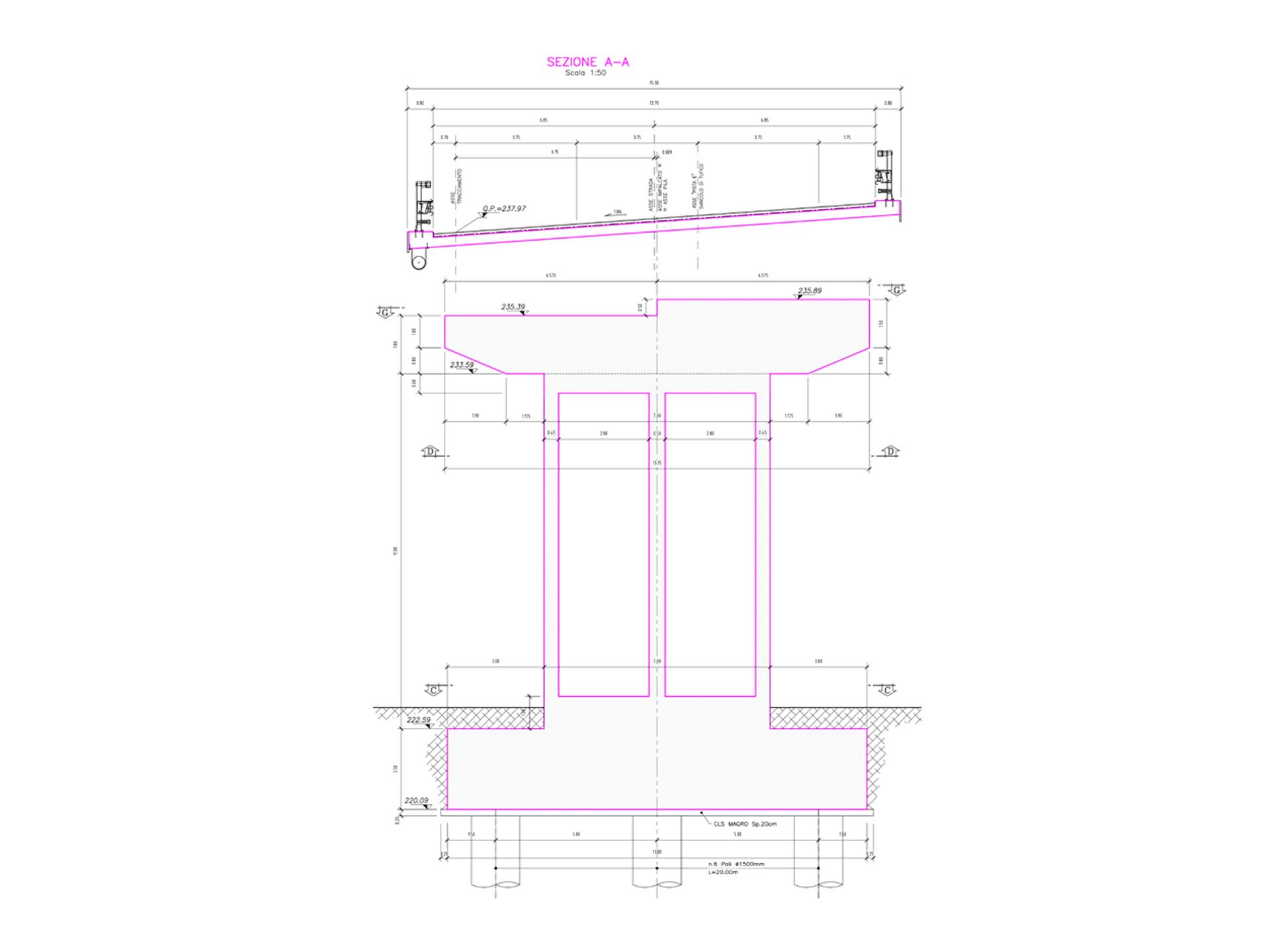
Quadrilatero Marche-Umbria: Viadotto Esino 1
Lavori di completamento della direttrice Perugia-Ancona: SS. 318 di "Valfabbrica", tratto Pianello-Valfabbrica
SS. 76 "Val D'Esino", tratti Fossato Vico-Cancelli e Albacina-Serra San Quirico
"Pedemontana delle Marche", tratto Fabriano-Muccia-Sfercia
Informazioni Progetto
- Committente: DIRPA 2 s.c.a.r.l.